.jpg)

tropical oasis
in the desert
ISLAND HOTEL AND APARTMENTS
Crafting luxury with precision and passion across the UAE
.webp)
.webp)
.webp)

.webp)
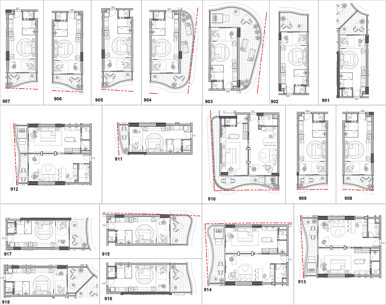
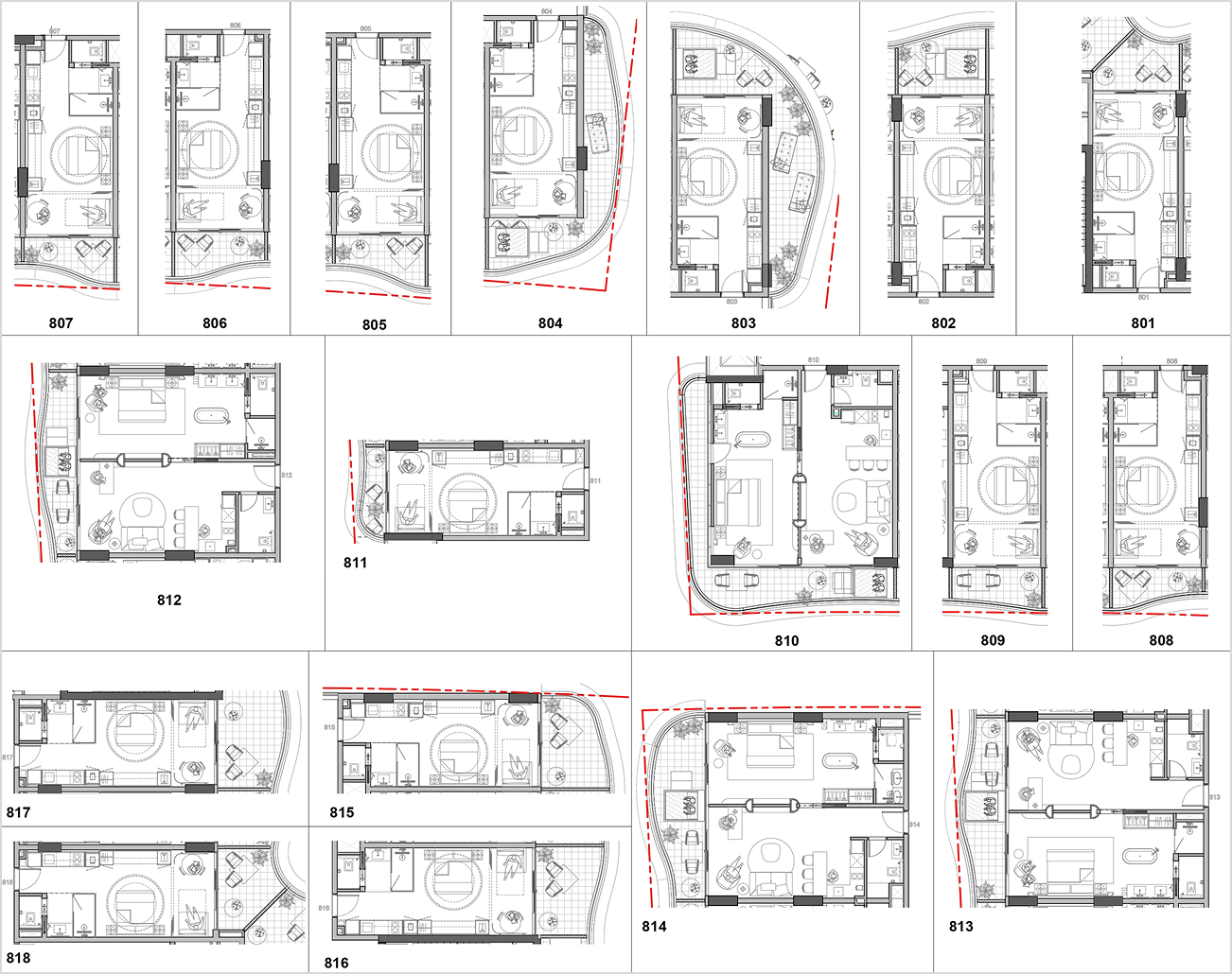
A New Benchmark in Luxury Living, Moments from the beach – Ras Al Khaimah
Featuring 121 hotel keys and 36 branded apartments, the development will deliver a blend of five-star hospitality services and contemporary living, offering sweeping sea views, high-design interiors, and a full suite of luxury amenities.
What sets this project apart is its unconventional design with an extraordinary fusion of tropical luxury and desert mystique.
The visionary design is envisioned by RRS International Development FZ LLC and executed by Arkiplan. The hotel’s wave-inspired architecture captures the motion of the ocean, providing guests with a seamless connection to both desert and sea. Inside, the tropical interiors by B8 Architecture feature lush greenery, open spaces, and vibrant décor, offering a refreshing escape from the desert’s heat. The project emphasizes smart design and lifestyle-led features.
Prime Location –
Al Marjan Island
.png)





Key Highlights
Our Gallery






































